Laboratorio in vendita

Milano, Via Tavazzano
€ 260.000
5 locali 5 locali
210 Mq 210 Mq
1 bagno 1 bagno

Laboratorio in vendita

Milano, Via Tavazzano

Descrizione annuncio

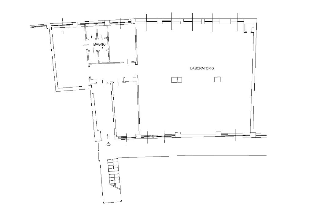
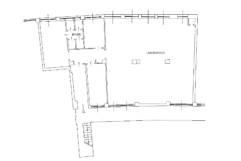
In via tavazzano, in zona strategica e ben collegata ,proponiamo in vendita laboratorio di 210 mq situato al piano seminterrato. L'immobile è collocato all'interno di uno stabile residenziale con ingresso indipendente e scala che conduce direttamente al seminterrato. L'ingresso si apre su un'accogliente reception che conduce ad un'ampio open space attualmente adibito a palestra. A completare l'immobile vi è uno spogliatoio con quattro docce, due saune e un bagno. Soluzione versatile, adatta ad attività sportive, centri benessere o studi professionali.

Non perdere questa occasione: per maggiori informazioni o per fissare un appuntamento è possibile contattare l’agenzia ai numeri 02 33490059 o 348 0525184; ogni agenzia ha un proprio titolare ed è autonoma.

I nostri incaricati sono disponibili dal lunedì al venerdì dalle 9:00 alle 13:00 e dalle 15:00 alle 19:30 e il sabato dalle 9:00 alle 12:30; è inoltre a vostra disposizione uno staff di consulenza creditizia qualificato, in grado di proporre il mutuo più adatto alle vostre possibilità, con possibilità di fissare un incontro gratuito presso i nostri uffici.

Mostra tutto

Nelle vicinanze

Trasporto pubblico Trasporto pubblico
QT8
QT8
1,2 Km
Portello
Portello
1,4 Km
stazione di Milano Villapizzone
stazione di Milano Villapizzone
920 m
Milano Bovisa
Milano Bovisa
1,3 Km
Piazzale Accursio
Piazzale Accursio
230 m
Ricariche auto elettriche Ricariche auto elettriche
Iper Portello
420 m
MediaWorld Certosa
610 m
EnelX EVA+ ADS Q8 MILANO De Gasperi
760 m
Enterprise Hotel, Design Hotel & Congress Centre
1,1 Km
Sorgenia
1,2 Km
Scuole Scuole
Scuola primaria Console Marcello
480 m
Scuola Secondaria di Primo Grado di Via Gallarate
520 m
Scuola dell'infanzia comunale Console Marcello
560 m
Scuola Maria Consolatrice
640 m
Scuola primaria Dante Alighieri
720 m
Farmacia Farmacia
Farmacia Fusco
140 m
Farmacia
340 m
Farmacia Amoretti
360 m
Parafarmacia Portello
380 m
Iper Farma
480 m
Ospedali Ospedali
Istituto Clinico Sant'Ambrogio
1,2 Km
Ospedale FieraMilano
1,3 Km
Poliambulatorio Cesare Pozzo
1,7 Km
Ospedale dei Bambini "Vittore Buzzi"
1,8 Km
Ospedali
2,2 Km
Supermercati Supermercati
In's
80 m
Punto SMA
250 m
Carrefour Market
310 m
BricoCenter Portello
380 m
Iper Milano Portello
470 m
Negozi Negozi
Coin
280 m
Negozi
330 m
Panetteria
330 m
Treesse
370 m
Accessorize
400 m
Bar Bar
Bar Bilancia
110 m
Ricos Bar Tabacchi
280 m
Bar tabacchi ricos
290 m
Dream caffè
310 m
Dream Caffè
310 m
Ristoranti Ristoranti
Himalaya
120 m
Innocenti Evasioni
190 m
Ristoranti
240 m
Garage Italia Milano
260 m
Ristorante Fiorenza
310 m
Mostra tutto

Caratteristiche

Rif.:
61178953
Piano:
Seminterrato di 8 con ascensore
Totale piani:
8
Condizionamento:
Autonomo
Ascensore:
Riscaldamento:
Centralizzato
Mostra tutto
Prezzo Prezzo
€ 260.000
Rata mutuo Rata mutuo
€ 1.214 / mese
Spese annue Spese annue
€ 3.600
Proponi il tuo prezzoProponi il tuo prezzo

Classe Energetica

G
G
G
G
G
G
G
G
G
EP globale rinnovabile:
264.32 kW h/m² anno
EP invernale del fabbricato:
EP estiva del fabbricato:
Anno di costruzione:
1960
Riscaldamento:
Centralizzato
Tipo impianto:
A radiatori
Tipo alimentazione:
Altro

Ti interessa visionare l'immobile?

Fissa un appuntamento  Fissa un appuntamento

Richiedi informazioni

Clicca su Leggi per aprire l'informativa
* Questi campi sono obbligatori

Calcola il tuo mutuo

Semplice e senza impegno
Anticipo

( % )
Mutuo

( % )

pochi semplici passi

inserisci i tuoi dati
Questionario completato
Grazie per aver richiesto un appuntamento senza impegno con un nostro Consulente del Credito e Assicurativo.

Hai inserito correttamente tutti i dati necessari e a breve riceverai una e-mail con un link da convalidare per inviare i tuoi dati.
Affiliato
Dedalo Immobiliare Snc
Via Gallarate, 131 20151 Milano (MI)

Il nostro staff


  • Davide Dattoli
    Affiliato

  • Andrea Denci
    Affiliato
Via Gallarate, 131 20151 Milano (MI)
Zona: Certosa - Gallarate
Mostra su mappa
Orari: Da Lunedì a Venerdì 9:00 - 13:00 e 15:00 - 19:30. Sabato 9:00 - 12:30.
Affiliato
Dedalo Immobiliare Snc
Via Gallarate, 131 20151 Milano (MI)

2026 Tecnocasa Franchising S.p.A. - P. IVA 08365160152 - Via Monte Bianco 60/A 20089 Rozzano (MI). Ogni agenzia ha un proprio titolare ed è autonoma. Privacy policy | Policy utilizzo | Cookie policy