Negozio in vendita

Milano, Via Casella
€ 232.000
3 locali 3 locali
135 Mq 135 Mq
2 bagni 2 bagni

Negozio in vendita

Milano, Via Casella

Descrizione annuncio

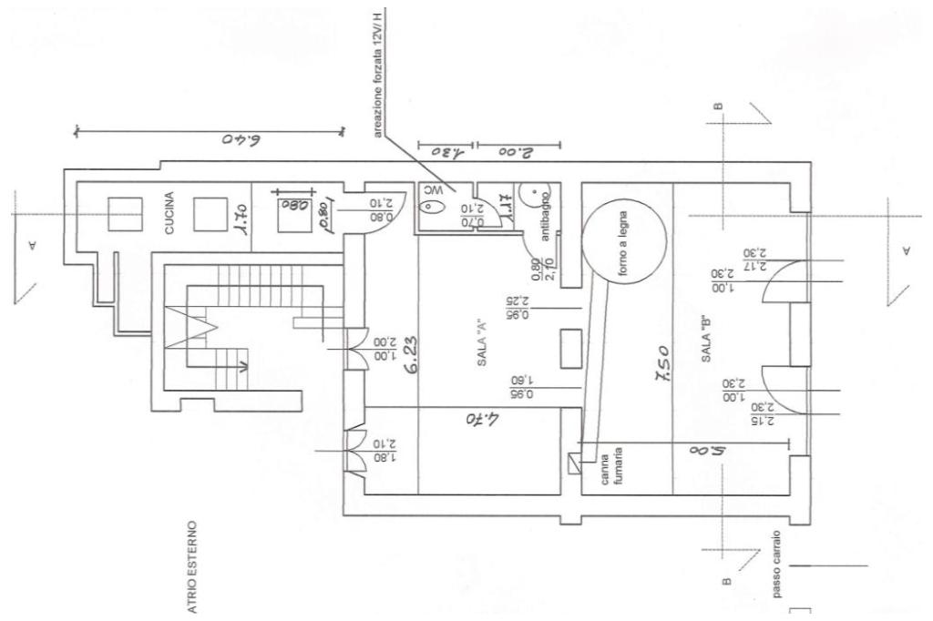
In zona Piazzale Accursio, quartiere in rapida trasformazione a nord di Milano, ricco di servizi, attività commerciali e a pochi minuti dal Politecnico, proponiamo in vendita un immobile a reddito situato in via Casella, attualmente locato a un ristorante pizzeria storico.

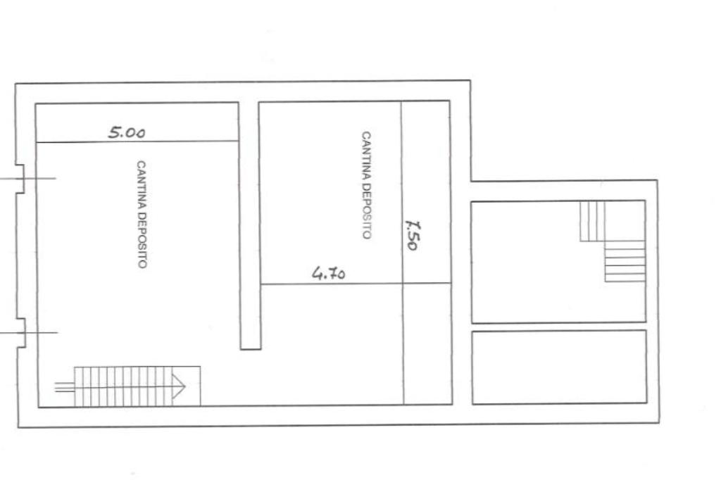
Il locale, che occupa una superficie di 135 mq, si sviluppa su due livelli: al piano terra si trovano due ampie sale per il servizio, recentemente riarredate e servite da un impianto di climatizzazione, un bancone con forno per la pizza, il locale cucina — ben attrezzato e completo di ogni necessità — e un servizio igienico. Al piano seminterrato sono presenti una cella frigorifera ampia, un magazzino funzionale e uno spogliatoio con servizio dedicato ai dipendenti.

L’attività conduttrice è avviata da oltre quarant’anni ed è tuttora pienamente operativa con servizio sia a pranzo che a cena, con una clientela fidelizzata composta da residenti del quartiere e lavoratori delle numerose attività circostanti. L’immobile rappresenta quindi un’interessante opportunità per chi cerca un investimento a reddito stabile in una zona strategica della città.

La zona è ben collegata e facilmente raggiungibile con i mezzi pubblici: a pochi minuti a piedi si trova la fermata Dergano della linea metropolitana M3, mentre le linee 82 e 92 degli autobus garantiscono ulteriori collegamenti con il resto della città. Ottima anche l’accessibilità in auto, grazie alla vicinanza con la tangenziale e alla presenza di parcheggi nella zona.

Non perdere questa occasione! Per maggiori informazioni o fissare un appuntamento si prega di telefonare in agenzia all numero 0233490059 - 3480525184 .Ogni agenzia ha un proprio titolare ed è autonoma. Per appuntamenti i nostri incaricati sono disponibili dal lunedì al venerdì dalle 9:00 alle 13:00 e dalle 15:00 alle 19:30. Il sabato dalle 9:00 alle 12:30. A vostra disposizione uno staff di consulenza creditizia in grado di proporvi il mutuo più adatto alle vostre possibilità. Contattateci per fissare un incontro gratuito nei nostri uffici..

Mostra tutto

Nelle vicinanze

Trasporto pubblico Trasporto pubblico
QT8
QT8
1,3 Km
Lampugnano
Lampugnano
1,6 Km
stazione di Milano Villapizzone
stazione di Milano Villapizzone
780 m
Milano Bovisa
Milano Bovisa
1,3 Km
Viale Espinasse - Via Casella
Viale Espinasse - Via Casella
200 m
Ricariche auto elettriche Ricariche auto elettriche
Iper Portello
610 m
EnelX EVA+ ADS Q8 MILANO De Gasperi
850 m
MediaWorld Certosa
850 m
Enterprise Hotel, Design Hotel & Congress Centre
1,3 Km
A2A Q8 Easy
1,3 Km
Scuole Scuole
Scuola primaria Console Marcello
330 m
Scuola dell'infanzia comunale Console Marcello
420 m
Scuola Maria Consolatrice
430 m
Scuola Secondaria di Primo Grado di Via Gallarate
490 m
Scuola Secondaria di primo grado Colombo
720 m
Farmacia Farmacia
Farmacia Amoretti
190 m
Farmacia Fusco
370 m
Farmacia Merlini
440 m
Farmacia
550 m
Parafarmacia Portello
570 m
Ospedali Ospedali
Istituto Clinico Sant'Ambrogio
1,4 Km
Ospedale FieraMilano
1,5 Km
Poliambulatorio Cesare Pozzo
1,7 Km
Ospedale dei Bambini "Vittore Buzzi"
2,0 Km
Ospedali
2,1 Km
Supermercati Supermercati
In's
180 m
Carrefour Market
220 m
Qui c'è Market
410 m
Punto SMA
440 m
BricoCenter Portello
600 m
Negozi Negozi
Negozi
360 m
Coin
490 m
Panetteria
560 m
Treesse
570 m
Pasticceria Mac Mahon
580 m
Bar Bar
Bar Bilancia
180 m
Bar Sorriso
260 m
Mondo Bar
300 m
Ricos Bar Tabacchi
500 m
Bar tabacchi ricos
510 m
Ristoranti Ristoranti
Ristoranti
0 m
Himalaya
120 m
L'immagine Bistrot Ristorante
140 m
Il Barone
230 m
Ristorante Dai Due fratelli
240 m
Mostra tutto

Caratteristiche

Rif.:
61179468
Piano:
Terra di 5
Totale piani:
5
Condizionamento:
Autonomo
Ascensore:
No
Riscaldamento:
Autonomo
Mostra tutto
Prezzo Prezzo
€ 232.000
Rata mutuo Rata mutuo
€ 1.099 / mese
Spese annue Spese annue
€ 3.000
Proponi il tuo prezzoProponi il tuo prezzo

Classe Energetica

G
G
G
G
G
G
G
G
G
EP globale non rinnovabile:
26432.00 kW h/m² anno
Anno di costruzione:
1987
Riscaldamento:
Autonomo
Tipo impianto:
A radiatori
Tipo alimentazione:
Altro

Ti interessa visionare l'immobile?

Fissa un appuntamento  Fissa un appuntamento

Richiedi informazioni

Clicca su Leggi per aprire l'informativa
* Questi campi sono obbligatori

Calcola il tuo mutuo

Semplice e senza impegno
Anticipo

( % )
Mutuo

( % )

pochi semplici passi

inserisci i tuoi dati
Questionario completato
Grazie per aver richiesto un appuntamento senza impegno con un nostro Consulente del Credito e Assicurativo.

Hai inserito correttamente tutti i dati necessari e a breve riceverai una e-mail con un link da convalidare per inviare i tuoi dati.
Affiliato
Dedalo Immobiliare Snc
Via Gallarate, 131 20151 Milano (MI)

Il nostro staff


  • Davide Dattoli
    Affiliato

  • Andrea Denci
    Affiliato
Via Gallarate, 131 20151 Milano (MI)
Zona: Certosa - Gallarate
Mostra su mappa
Orari: Da Lunedì a Venerdì 9:00 - 13:00 e 15:00 - 19:30. Sabato 9:00 - 12:30.
Affiliato
Dedalo Immobiliare Snc
Via Gallarate, 131 20151 Milano (MI)

2026 Tecnocasa Franchising S.p.A. - P. IVA 08365160152 - Via Monte Bianco 60/A 20089 Rozzano (MI). Ogni agenzia ha un proprio titolare ed è autonoma. Privacy policy | Policy utilizzo | Cookie policy