Ufficio in affitto

Milano, Via Antonio Cechov
€ 3.250 / mese
9 locali 9 locali
280 Mq 280 Mq
2 bagni 2 bagni

Ufficio in affitto

Milano, Via Antonio Cechov

Descrizione annuncio

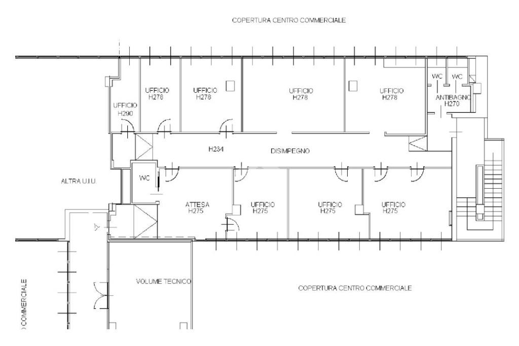
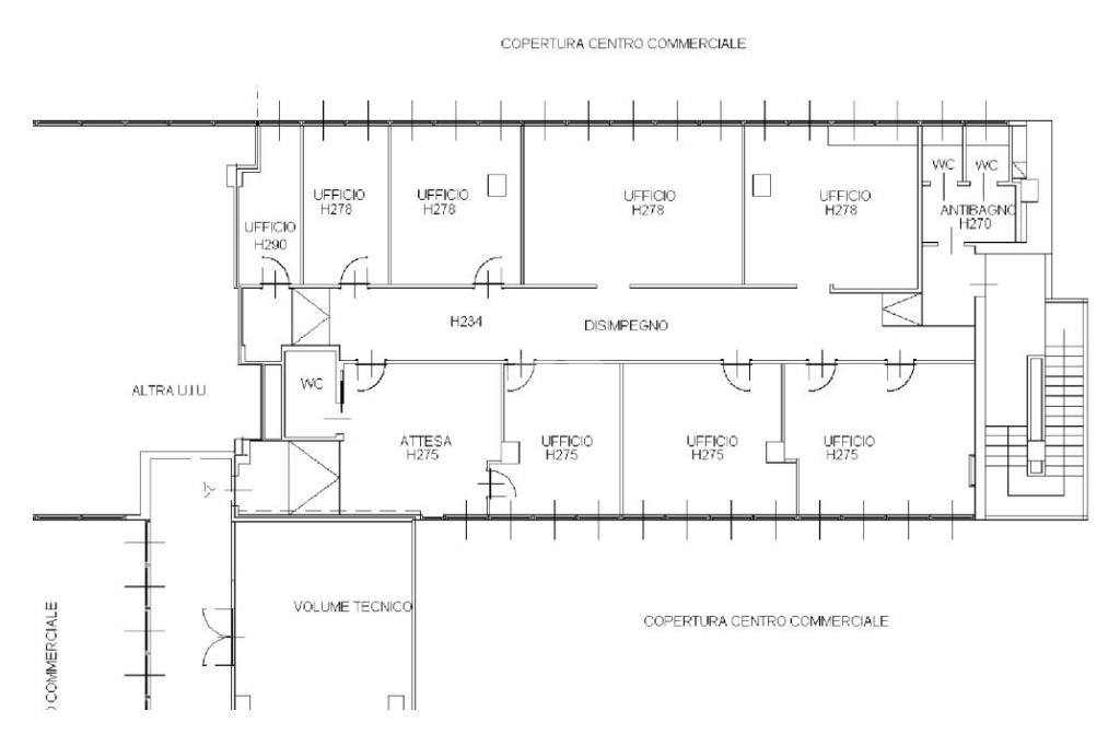
Nel quartiere Bonola, area strategica a nord-ovest di Milano caratterizzata da un contesto direzionale in forte sviluppo e da un’ampia offerta di servizi, proponiamo in locazione un ufficio di 280 mq recentemente ristrutturato. L’immobile è situato al quinto piano del Centro Direzionale di via Antonio Cechov 4, in posizione privilegiata sopra il Centro Commerciale Bonola, e dispone di tre ascensori che garantiscono accessibilità e comfort.

La superficie si articola in otto uffici di differenti dimensioni, un locale tecnico destinato a server e due servizi igienici, uno dei quali realizzato secondo le normative per l’accessibilità alle persone con disabilità. La distribuzione interna degli ambienti consente di ospitare diverse configurazioni operative, rispondendo in modo flessibile alle esigenze di società, studi professionali e realtà aziendali strutturate. Compresi nel canone annuo quattro posti auto.

L’immobile gode di ottimi collegamenti con i principali nodi della città: la fermata MM1 Bonola (linea rossa) è raggiungibile a piedi in pochi minuti e garantisce un accesso diretto al centro di Milano e alle principali stazioni ferroviarie. La zona è inoltre servita da linee di trasporto pubblico di superficie e beneficia della vicinanza con le principali arterie stradali, con collegamenti rapidi alle tangenziali e all’imbocco dell’autostrada. Un’opportunità ideale per chi ricerca spazi professionali, efficienti e perfettamente integrati in un contesto urbano e direzionale consolidato.

Non perdere questa occasione! Per maggiori informazioni o fissare un appuntamento si prega di telefonare in agenzia all numero 0233490059 - 3480525184 .Ogni agenzia ha un proprio titolare ed è autonoma. Per appuntamenti i nostri incaricati sono disponibili dal lunedì al venerdì dalle 9:00 alle 13:00 e dalle 15:00 alle 19:30. Il sabato dalle 9:00 alle 12:30. A vostra disposizione uno staff di consulenza creditizia in grado di proporvi il mutuo più adatto alle vostre possibilità. Contattateci per fissare un incontro gratuito nei nostri uffici..

Mostra tutto

Nelle vicinanze

Trasporto pubblico Trasporto pubblico
Bonola
Bonola
350 m
Uruguay
Uruguay
540 m
stazione di Milano Certosa
stazione di Milano Certosa
2,0 Km
stazione di Milano Villapizzone
stazione di Milano Villapizzone
3,0 Km
Cimitero Maggiore
Cimitero Maggiore
970 m
Ricariche auto elettriche Ricariche auto elettriche
The Hub Hotel
2,0 Km
EnelX EVA+ ADS Q8 MILANO De Gasperi
2,3 Km
Iper Portello
2,6 Km
A2A Q8 Easy
2,6 Km
METRO Milano Baranzate
2,7 Km
Scuole Scuole
Istituto Comprensivo Statale G. Borsi
260 m
Scuole
390 m
Istituto Professionale di Stato C. Porta
490 m
Scuola primaria Cilea
690 m
Scuola Primaria Via Viscontini
810 m
Farmacia Farmacia
Farmacia Bonola
90 m
Farmacia Gallaratese
380 m
Farmacia Madonnina
390 m
Farmacia
820 m
Farmacia Comunale
830 m
Ospedali Ospedali
Ospedali
650 m
Casa di Cura San Giovanni
2,7 Km
ospedale Luigi Sacco
2,8 Km
Supermercati Supermercati
Supermercati
160 m
Lidl
700 m
Carrefour Market
800 m
Carrefour Express
850 m
Conad
1,3 Km
Negozi Negozi
Negozi
80 m
NAFNAF
2,3 Km
Timberland
2,3 Km
Intimissimi
2,6 Km
Max & Co.
2,6 Km
Bar Bar
Bar
70 m
Bar Articoli
950 m
Labriola
1,0 Km
Bar Fratelli Guido
1,2 Km
Cafè Soleil
1,5 Km
Ristoranti Ristoranti
Ristorante Bonola
50 m
Cotica
880 m
Grand Canyon
1,1 Km
La Ratera
1,2 Km
Vincendo
1,3 Km
Mostra tutto

Caratteristiche

Rif.:
61177207
Piano:
5 di 12 con ascensore (Piano alto)
Posti auto:
4
Condizionamento:
Centralizzato
Ascensore:
Riscaldamento:
Centralizzato
Mostra tutto
Prezzo Prezzo
€ 3.250 / mese
Spese annue Spese annue
€ 8.700

Classe Energetica

G
G
G
G
G
G
G
G
G
EP globale rinnovabile:
104.23 kW h/m² anno
EP invernale del fabbricato:
EP estiva del fabbricato:
Anno di costruzione:
1987
Riscaldamento:
Centralizzato
Tipo impianto:
Ad aria
Tipo alimentazione:
Altro

Ti interessa visionare l'immobile?

Fissa un appuntamento  Fissa un appuntamento

Richiedi informazioni

Clicca su Leggi per aprire l'informativa
* Questi campi sono obbligatori
Affiliato
Dedalo Immobiliare Snc
Via Gallarate, 131 20151 Milano (MI)

Il nostro staff


  • Davide Dattoli
    Affiliato

  • Andrea Denci
    Affiliato
Via Gallarate, 131 20151 Milano (MI)
Zona: Certosa - Gallarate
Mostra su mappa
Orari: Da Lunedì a Venerdì 9:00 - 13:00 e 15:00 - 19:30. Sabato 9:00 - 12:30.
Affiliato
Dedalo Immobiliare Snc
Via Gallarate, 131 20151 Milano (MI)

2026 Tecnocasa Franchising S.p.A. - P. IVA 08365160152 - Via Monte Bianco 60/A 20089 Rozzano (MI). Ogni agenzia ha un proprio titolare ed è autonoma. Privacy policy | Policy utilizzo | Cookie policy