Ufficio in affitto

Milano, Via Antonio Cechov - Gallaratese
€ 5.200 / mese
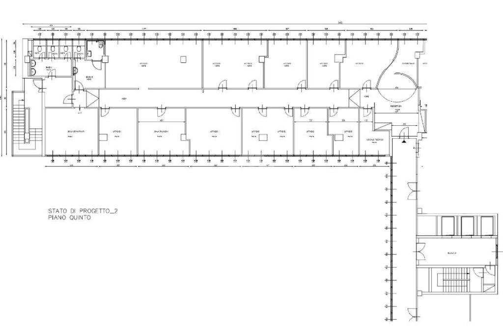
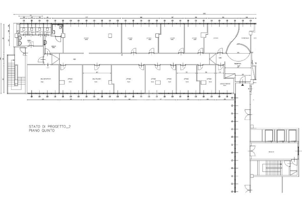
13 locali 13 locali
460 Mq 460 Mq
5 bagni 5 bagni

Ufficio in affitto

Milano, Via Antonio Cechov - Gallaratese

Descrizione annuncio

Situato in una delle aree più servite e comode di Milano, l’ufficio si trova in via Antonio Cechov, direttamente sopra il Centro Commerciale Bonola. La zona offre ogni tipo di servizio, dai negozi ai ristoranti, dalle banche alle palestre, oltre alla comodità della fermata MM1 Bonola raggiungibile a piedi e all’immediata vicinanza con l’imbocco autostradale, che assicura collegamenti rapidi con il centro città e con l’hinterland. Al quinto ed ultimo piano di un centro direzionale, proponiamo in locazione un ufficio di 460 mq interamente ristrutturato: l’ingresso si apre su una grande e lussuosa reception, cuore rappresentativo dello spazio, da cui si sviluppano una stanza server e ambienti di diverse dimensioni, ideali da destinare a uffici, sale riunioni, zone ristoro o relax. L’immobile è servito da tre ascensori, accessibile alle persone con disabilità, e dispone di due gruppi servizi, uno dei quali già predisposto per utenti con esigenze specifiche. Nel canone annuo sono inclusi sei posti auto coperti, una soluzione pratica e vantaggiosa per chi raggiunge l’ufficio con mezzi propri. Si tratta di un’opportunità esclusiva per aziende che ricercano un ambiente elegante, funzionale e perfettamente collegato. Non perdere questa occasione! Per maggiori informazioni o fissare un appuntamento si prega di telefonare in agenzia all numero 0233490059 - 3480525184 .Ogni agenzia ha un proprio titolare ed è autonoma. Per appuntamenti i nostri incaricati sono disponibili dal lunedì al venerdì dalle 9:00 alle 13:00 e dalle 15:00 alle 19:30. Il sabato dalle 9:00 alle 12:30. A vostra disposizione uno staff di consulenza creditizia in grado di proporvi il mutuo più adatto alle vostre possibilità. Contattateci per fissare un incontro gratuito nei nostri uffici.

Mostra tutto

Nelle vicinanze

Trasporto pubblico Trasporto pubblico
Bonola
Bonola
350 m
Uruguay
Uruguay
540 m
stazione di Milano Certosa
stazione di Milano Certosa
2,0 Km
stazione di Milano Villapizzone
stazione di Milano Villapizzone
3,0 Km
Cimitero Maggiore
Cimitero Maggiore
970 m
Ricariche auto elettriche Ricariche auto elettriche
The Hub Hotel
2,0 Km
EnelX EVA+ ADS Q8 MILANO De Gasperi
2,3 Km
Iper Portello
2,6 Km
A2A Q8 Easy
2,6 Km
METRO Milano Baranzate
2,7 Km
Scuole Scuole
Istituto Comprensivo Statale G. Borsi
260 m
Scuole
390 m
Istituto Professionale di Stato C. Porta
490 m
Scuola primaria Cilea
690 m
Scuola Primaria Via Viscontini
810 m
Farmacia Farmacia
Farmacia Bonola
90 m
Farmacia Gallaratese
380 m
Farmacia Madonnina
390 m
Farmacia
820 m
Farmacia Comunale
830 m
Ospedali Ospedali
Ospedali
650 m
Casa di Cura San Giovanni
2,7 Km
ospedale Luigi Sacco
2,8 Km
Supermercati Supermercati
Supermercati
160 m
Lidl
700 m
Carrefour Market
800 m
Carrefour Express
850 m
Conad
1,3 Km
Negozi Negozi
Negozi
80 m
NAFNAF
2,3 Km
Timberland
2,3 Km
Intimissimi
2,6 Km
Max & Co.
2,6 Km
Bar Bar
Bar
70 m
Bar Articoli
950 m
Labriola
1,0 Km
Bar Fratelli Guido
1,2 Km
Cafè Soleil
1,5 Km
Ristoranti Ristoranti
Ristorante Bonola
50 m
Cotica
880 m
Grand Canyon
1,1 Km
La Ratera
1,2 Km
Vincendo
1,3 Km
Mostra tutto

Caratteristiche

Rif.:
61177878
Piano:
5 di 5 con ascensore (ultimo Piano)
Posti auto:
6
Condizionamento:
Centralizzato
Ascensore:
Riscaldamento:
Centralizzato
Mostra tutto
Prezzo Prezzo
€ 5.200 / mese
Spese annue Spese annue
€ 15.000

Altre caratteristiche

Descrizione dei locali
Bagno Cieco

Classe Energetica

G
G
G
G
G
G
G
G
G
EP invernale del fabbricato:
EP estiva del fabbricato:
Anno di costruzione:
1985
Riscaldamento:
Centralizzato
Tipo impianto:
Ad aria
Tipo alimentazione:
Aria

Ti interessa visionare l'immobile?

Fissa un appuntamento  Fissa un appuntamento

Richiedi informazioni

Clicca su Leggi per aprire l'informativa
* Questi campi sono obbligatori
Affiliato
Dedalo Immobiliare Snc
Via Gallarate, 131 20151 Milano (MI)

Il nostro staff


  • Davide Dattoli
    Affiliato

  • Andrea Denci
    Affiliato
Via Gallarate, 131 20151 Milano (MI)
Zona: Certosa - Gallarate
Mostra su mappa
Orari: Da Lunedì a Venerdì 9:00 - 13:00 e 15:00 - 19:30. Sabato 9:00 - 12:30.
Affiliato
Dedalo Immobiliare Snc
Via Gallarate, 131 20151 Milano (MI)

2026 Tecnocasa Franchising S.p.A. - P. IVA 08365160152 - Via Monte Bianco 60/A 20089 Rozzano (MI). Ogni agenzia ha un proprio titolare ed è autonoma. Privacy policy | Policy utilizzo | Cookie policy