Ufficio in vendita

Milano, Via Antonio Cechov - Gallaratese
€ 825.000
18 locali 18 locali
760 Mq 760 Mq
4 bagni 4 bagni

Ufficio in vendita

Milano, Via Antonio Cechov - Gallaratese

Descrizione annuncio

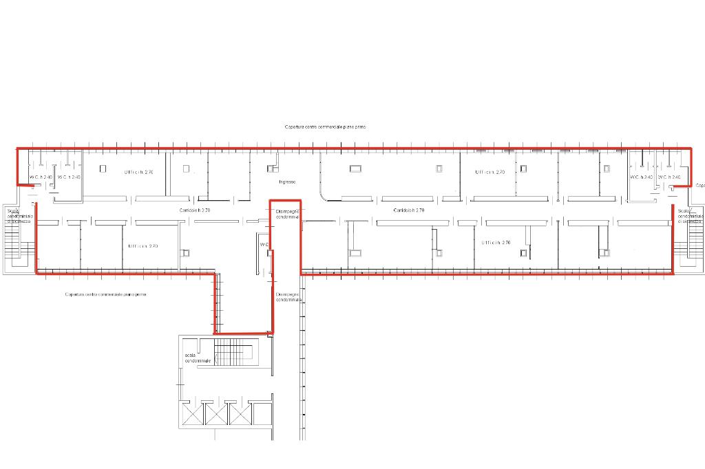
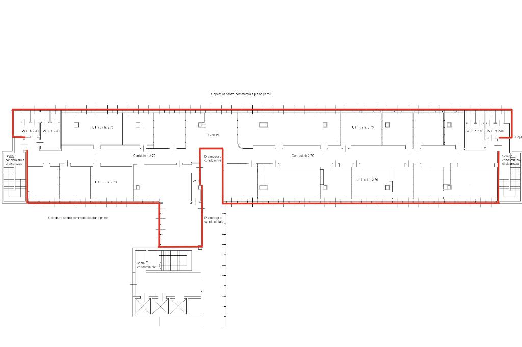
A Milano, in via Cechov, proponiamo in vendita un ufficio di rappresentanza di 760 mq situato al terzo piano di un centro direzionale. L’immobile si trova direttamente sopra il Centro Commerciale Bonola, la sua posizione strategica garantisce l’accesso immediato a numerosi servizi: bar, ristoranti, supermercati, palestra, oltre ad una eccellente connessione con i mezzi pubblici, grazie alla vicinanza con la fermata della metropolitana M1 Bonola e una comoda uscita verso le principali autostrade.

L’ufficio si presenta in buone condizioni e offre spazi ampi, luminosi e razionalmente distribuiti. L’ingresso conduce a una zona accoglienza ben strutturata, che introduce a una varietà di ambienti funzionali: sedici uffici di dimensioni differenti, una grande sala riunioni, un’area relax per le pause caffè e pranzo, e quattro gruppi servizi, uno dei quali progettato per garantire l’accessibilità a persone con disabilità. Le quattro porte di accesso indipendenti rendono l’immobile particolarmente flessibile, offrendo la possibilità di suddividerlo in più unità autonome, ideali per studi associati o attività complementari. Completano la proprietà 25 posti auto al piano interrato, disponibili al prezzo di 5.000 euro ciascuno, per un totale di 125.000 euro. Una soluzione pensata per chi cerca un ambiente professionale, efficiente e ben collegato, in uno dei poli direzionali più pratici e accessibili della città.

Non perdere questa occasione: per maggiori informazioni o per fissare un appuntamento è possibile contattare l’agenzia ai numeri 02 33490059 o 348 0525184; ogni agenzia ha un proprio titolare ed è autonoma. I nostri incaricati sono disponibili dal lunedì al venerdì dalle 9:00 alle 13:00 e dalle 15:00 alle 19:30 e il sabato dalle 9:00 alle 12:30; è inoltre a vostra disposizione uno staff di consulenza creditizia qualificato, in grado di proporre il mutuo più adatto alle vostre possibilità, con possibilità di fissare un incontro gratuito presso i nostri uffici..

Mostra tutto

Nelle vicinanze

Trasporto pubblico Trasporto pubblico
Bonola
Bonola
350 m
Uruguay
Uruguay
540 m
stazione di Milano Certosa
stazione di Milano Certosa
2,0 Km
stazione di Milano Villapizzone
stazione di Milano Villapizzone
3,0 Km
Cimitero Maggiore
Cimitero Maggiore
970 m
Ricariche auto elettriche Ricariche auto elettriche
The Hub Hotel
2,0 Km
EnelX EVA+ ADS Q8 MILANO De Gasperi
2,3 Km
Iper Portello
2,6 Km
A2A Q8 Easy
2,6 Km
METRO Milano Baranzate
2,7 Km
Scuole Scuole
Istituto Comprensivo Statale G. Borsi
260 m
Scuole
390 m
Istituto Professionale di Stato C. Porta
490 m
Scuola primaria Cilea
690 m
Scuola Primaria Via Viscontini
810 m
Farmacia Farmacia
Farmacia Bonola
90 m
Farmacia Gallaratese
380 m
Farmacia Madonnina
390 m
Farmacia
820 m
Farmacia Comunale
830 m
Ospedali Ospedali
Ospedali
650 m
Casa di Cura San Giovanni
2,7 Km
ospedale Luigi Sacco
2,8 Km
Supermercati Supermercati
Supermercati
160 m
Lidl
700 m
Carrefour Market
800 m
Carrefour Express
850 m
Conad
1,3 Km
Negozi Negozi
Negozi
80 m
NAFNAF
2,3 Km
Timberland
2,3 Km
Intimissimi
2,6 Km
Max & Co.
2,6 Km
Bar Bar
Bar
70 m
Bar Articoli
950 m
Labriola
1,0 Km
Bar Fratelli Guido
1,2 Km
Cafè Soleil
1,5 Km
Ristoranti Ristoranti
Ristorante Bonola
50 m
Cotica
880 m
Grand Canyon
1,1 Km
La Ratera
1,2 Km
Vincendo
1,3 Km
Mostra tutto

Caratteristiche

Rif.:
61179866
Piano:
3 di 5 con ascensore (Piano medio)
Posti auto:
25
Condizionamento:
Autonomo
Ascensore:
Riscaldamento:
Autonomo
Mostra tutto
Prezzo Prezzo
€ 825.000
Rata mutuo Rata mutuo
€ 3.910 / mese
Spese annue Spese annue
€ 34.800
Proponi il tuo prezzoProponi il tuo prezzo

Classe Energetica

G
G
G
G
G
G
G
G
G
EP globale non rinnovabile:
264.32 kW h/m² anno
EP invernale del fabbricato:
EP estiva del fabbricato:
Anno di costruzione:
1985
Riscaldamento:
Autonomo
Tipo impianto:
Ad aria
Tipo alimentazione:
Altro

Ti interessa visionare l'immobile?

Fissa un appuntamento  Fissa un appuntamento

Richiedi informazioni

Clicca su Leggi per aprire l'informativa
* Questi campi sono obbligatori

Calcola il tuo mutuo

Semplice e senza impegno
Anticipo

( % )
Mutuo

( % )

pochi semplici passi

inserisci i tuoi dati
Questionario completato
Grazie per aver richiesto un appuntamento senza impegno con un nostro Consulente del Credito e Assicurativo.

Hai inserito correttamente tutti i dati necessari e a breve riceverai una e-mail con un link da convalidare per inviare i tuoi dati.
Affiliato
Dedalo Immobiliare Snc
Via Gallarate, 131 20151 Milano (MI)

Il nostro staff


  • Davide Dattoli
    Affiliato

  • Andrea Denci
    Affiliato
Via Gallarate, 131 20151 Milano (MI)
Zona: Certosa - Gallarate
Mostra su mappa
Orari: Da Lunedì a Venerdì 9:00 - 13:00 e 15:00 - 19:30. Sabato 9:00 - 12:30.
Affiliato
Dedalo Immobiliare Snc
Via Gallarate, 131 20151 Milano (MI)

2026 Tecnocasa Franchising S.p.A. - P. IVA 08365160152 - Via Monte Bianco 60/A 20089 Rozzano (MI). Ogni agenzia ha un proprio titolare ed è autonoma. Privacy policy | Policy utilizzo | Cookie policy